You will be redirected to the agency website. Are you sure you want to continue?
2 bedrooms House for sale in Layan
About this property
RESALE: 2-STOREY FULLY FURNISHED MODERN LUXURY HOME 5 MINUTES TO LAYAN BEACH
------------
Villa Overview - Contemporary Island Energy
Modern design meets everyday island living, capturing sweeping mountain and sea views through well-planned site planning and bold architecture.
This 3-bedroom sea view pool villa for sale near Layan Beach, Phuket features a design that emphasizes natural light, airflow, and a strong connection to the outdoors. Full-height glazing wraps the main living spaces, allowing uninterrupted sea views while drawing in abundant daylight and cross-ventilation. Covered balconies extend the interiors outward, creating comfortable all-weather spaces for relaxation and entertaining.
Finishes combine warmth with understated sophistication. Timber ceilings add character, while stone flooring delivers a clean, timeless aesthetic. Altogether, the interiors feel luxurious yet practical for everyday use.
------------
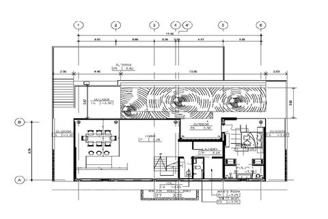
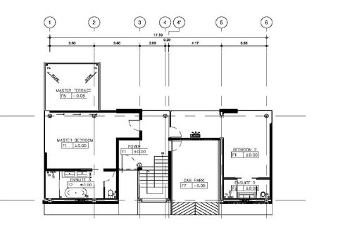
Villa Layout - Designed to Flow
The villa has 2 levels with a total built-up area of 507 sqm. The ground floor features an open-plan living, dining, and kitchen area that opens directly onto the pool area. This level also includes a guest bathroom, a maids room, laundry area and a bedroom with direct pool access and an ensuite bathroom.
Upstairs, the main entrance and parking are located alongside 2 additional bedrooms, both with ensuite bathrooms. One of these bedrooms opens onto a private terrace overlooking the pool.
------------
Pool & Outdoor Living - Designed for Island Living
Set on a generous 650 sqm plot, the villa offers ample outdoor space designed for luxurious tropical living. Beside the generously sized swimming pool is a covered sala, creating a natural extension of the indoor spaces. Directly in front of the pool area, one level below, a spacious terrace provides lounging and dining areas, complemented by a covered barbecue area. Outdoor living is central to the villa's appeal. Whether hosting guests or unwinding in privacy, these well-proportioned spaces allow residents to enjoy the scenery throughout the day.
------------
Development Overview - Low Density Luxury
Delivered by an experienced development team behind several luxury boutique villa projects in the Layan area, with a strong focus on design quality and well-chosen locations.
The development is intentionally limited to just 12 villas, offering 3- and 4-bedroom layouts, many with sea views. As a result, it appeals to buyers seeking a private residential environment with enduring appeal, whether for full-time living or high-quality investment use. The development is completely sold out with 3 villas available for resale.
------------
Location & Accessibility - Layan Lifestyle
Layan Beach is just 5 minutes away, offering a laid-back shoreline alongside upscale resorts, dining, and local amenities. Boat Avenue, Porto de Phuket and Laguna are approximately 15 minutes away, providing shopping, restaurants, and nightlife options. Phuket International Airport is just a 30 minute drive.
------------
Contact Thai Residential - Phuket Property Centre
Thai Residential is Phuket's trusted property advisor, specializing in luxury homes, condos, and investment opportunities across the island. Whether you're seeking a permanent residence, a tropical holiday retreat, or a smart investment, our team is here to guide you every step of the way.
Property details, pricing, and availability may change without notice. Property Features
Villa / Houses
3 bed
4 bath
Air Conditioning
Pool
650 sqm
507 sqm
Balcony
Outdoor Entertaining
Fully Fenced
Fitness Centre / Gym
Fully Furnished
Laundry Facilities / Services
Maid's Room / Staff Quarters
Near Beach
Private Pool
Reception / Lobby Area
Resale
* Sea View
For more details about this property, contact Charlesdel on tel: +44 (0) 207 101 4021, WhatsApp: +44 (0) 207 101 4021 or info@charlesdel.com
Property features
- Property type: House
- Baths: 4
About the rental
- Price: $2 182 257
Similar properties
Chalong, Phuket, Thailand
Chalong, Phuket, Thailand
Mai Khao, Phuket, Thailand
Laguna, Phuket, Thailand
Laguna, Phuket, Thailand
Mai Khao, Phuket, Thailand
Laguna, Phuket, Thailand
Layan, Phuket, Thailand
Kata, Phuket, Thailand
South Pattaya, Chonburi, Thailand
Pru Jampa, Phuket, Thailand
Cherng Talay, Phuket, Thailand
Koh Lanta Islands, Koh Lanta, Thailand
Layan, Phuket, Thailand
Bophut, Surat Thani, Thailand
West - Hua Hin, Prachuap Khiri Khan, Thailand
Ban Harn, Surat Thani, Thailand
Bophut, Surat Thani, Thailand
Bophut, Surat Thani, Thailand
Surin Beach, Phuket, Thailand
Rawai, Phuket, Thailand
Surin, Phuket, Thailand
Surin, Phuket, Thailand
Laguna, Phuket, Thailand
Nai Harn, Phuket, Thailand
Choengmon, Surat Thani, Thailand
Manik, Phuket, Thailand
Cherng Talay, Phuket, Thailand
Bang Wa, Bangkok, Thailand
Central - Hua Hin, Prachuap Khiri Khan, Thailand
Karon, Phuket, Thailand