You will be redirected to the agency website. Are you sure you want to continue?
2 bedrooms House for sale in Cahuzac-sur-Vere
About this property
This beautifully renovated 5 bedroom stone property sits in amongst the vines and olive groves in one of the most sought-after areas of SW France. The property manages to strike the perfect balance between the traditional and the contemporary, with bright and spacious living areas and fabulous views. There's a large pool, dining terrace and pretty garden. The local village, with shops and restaurants is within walking distance.
Modern upgrades include app enabled climate control, a premium WiFi mesh system which, paired with new high-speed fibre internet, provides stable and consistent coverage throughout the house and garden—ideal for remote working or streaming.
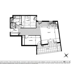
There's a generous 382m2 of habitable space and the layout and dimensions are as follows:
Ground floor:
Entrance (20.61 M2)
Living-room (25 M2)
Kitchen (30.32 M2)
Laundry room (19.95 M2)
Dining room (47.9 M2)
Living-room (42.34 M2)
Study (24.4 M2)
Lavatory (4 M2)
First floor:
Landing (21.79 M2)
Master bedroom (30.2 M2)
Bathroom / WC (20.45 M2)
Bedroom 2 (26.48 M2)
Shower room / Lavatory (5.04 M2)
Hallway (14.96 M2)
Shower room / Lavatory (5.22 M2)
Bedroom 3 (11.58 M2)
Bedroom 4 (8.95 M2)
Bedroom 5 (19.56 M2)
Shower room / WC (3.74 M2)
Outside:
The plot size measures 2580m2 (0.63 acres). There's a 30m2 covered dining terrace that overlooks the 13m private saltwater swimming pool, framed by traditional sandstone paving. To the side, a versatile barn offers space for a games room or garage, alongside a covered parking area.
At a glance:
Bedrooms: 5
Bathrooms: 4
Receptions: 2
Habitable space: 382m2
Plot size: 2580m2
DPE rating: D
Taxe fonciere: 2500 Euros per annum
Broadband: Yes
Drainage: Septic tank
Heating: Gas central heating (underfloor)
Distance to shops: Walking
Distance to airport: 1h10mins
Please note: Agency fees are included in the advertised price and are payable by the purchaser. All locations and sizes are approximate. La Residence has made every effort to ensure that the details and photographs of this property are accurate and in no way misleading. However, this information does not form part of a contract and no warranties are either given or implied.
Information on the risks to which this property is exposed is available on the Georisks website: www.georisks.gouv.fr
Beautifully renovated stone village house
Stunning location amongst the vines
Beautiful pool & dining terrace
5 bedrooms, 3 of which are en suite
Over half an acre garden
Peaceful & private
Bright and spacious living areas
Large outbuilding
High speed internet
Within easy reach of Toulouse airport
Property features
- Property type: House
- Baths: 4
About the rental
- Price: $1 034 035
Hot properties
Saint-Jean-Cap-Ferrat, Alpes-Maritimes, France
Antibes, Alpes-Maritimes, France
Antibes, Alpes-Maritimes, France
Antibes, Alpes-Maritimes, France
Similar properties
Le Cros, 34520, Languedoc-Roussillon, France
Castelnau-Magnoac, 65230, Midi-Pyrenees, France
Chateauneuf-Grasse, Alpes-Maritimes, France
Nice, Alpes-Maritimes, France
Nice, Alpes-Maritimes, France
Beausoleil, Alpes-Maritimes, France
Les Saisies, Rhone Alps, France
Val Thorens, Rhone Alps, France
Les Saisies, Rhone Alps, France
Val Thorens, Rhone Alps, France
Sommieres, 30250, Languedoc-Roussillon, France
Falcon Lodge, Meribel, Rhone-Alpes, France
Roquebrune-Cap-Martin, Alpes-Maritimes, France
St-Gervais-les-Bains, 74170, Rhone-Alpes, France
St-Gervais-les-Bains, 74170, Rhone-Alpes, France
Allemond, Rhone Alps, France
Allemond, Rhone Alps, France
Allemond, Rhone Alps, France
Allemond, Rhone Alps, France
Stella Plage, 62780, Nord-Pas-de-Calais, France
Cannes, Alpes-Maritimes, France
Megève,Megève | Mont D'Arbois, Megeve, 74120, Rhone-Alpes, France
Hauteluce, 73620, Rhone-Alpes, France
Hauteluce, 73620, Rhone-Alpes, France
Hauteluce, 73620, Rhone-Alpes, France
Megève,Megève | Mont D'Arbois, Megeve, 74120, Rhone-Alpes, France
Hauteluce, 73620, Rhone-Alpes, France
Hauteluce, 73620, Rhone-Alpes, France
Hauteluce, 73620, Rhone-Alpes, France
Cannes, Alpes-Maritimes, France
Portes Du Soleil, Chatel, 74390, Rhone-Alpes, France