You will be redirected to the agency website. Are you sure you want to continue?
2 bedrooms House for sale in Boulogne-sur-Gesse
About this property
Situated in a lively market town, this traditional maison-de-maitre has been fully renovated and really makes the most of the beautiful light-filled, large rooms. There are currently 3-bedrooms / 2-bathrooms but there is scope to increase the living space. Surrounded by a very pretty garden and with a garage, outbuilding and off-road parking, this is house with lots of potential.
The impressive stone staircase is at the heart of the house and is central to the flow of the house which works so well. There is currently 265m2 habitable space, but is may also be possible to convert the attic and there is also a separate house in the garden, formerly the office, that also offer potential for renovation (subject to planning.) Here is the current layout:
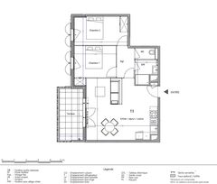
Ground floor
Entrance hall - 20m2
Stairwell - 10m2
Sitting room - 24.87m2 with double windows and fire place
Dining room - 23m2 with fireplace & view of the garden
Kitchen - 16m2 with fireplace and windows overlooking the garden
Back kitchen - 4.45m2 with door to the cellar
Cellar - 43m2
Room for finishing (would make a great snug sitting room or ground floor bedroom) - 20.47m2 with fireplace
Annex - 9.71m2
First floor
Landing - 19.75m2
Master bedroom - 16m2
Ensuite bathroom - 12m2 with bath
Bedroom 2 - 25m2 with bath & sink
Bedroom 3 - 17.7m2 with annex room that could be a bathroom or dressing room
The recent renovation work has resulted in a C-rated DPE listing and the house is a very comfortable home, year round. The new installations include an air-source heat pump, insulation, thermodynamic water heater, and double-glazed aluminium windows on the garden side of the house.
Outside
The gardens are a particularly lovely part of this property. Covering an area of 1/4 acre, a wrought-iron front gate leads you down a palm-tree lined path to the front door. A lovely walled garden is a real sun-trap and a great place to make the most of the sunshine, particularly early spring and late summer as the air begins to chill but the sun still has some warmth to it. The cobbled terrace area is ideal for alfresco dining and there is also a vine-covered shaded area if you want to beat a retreat during the heat of the day.
The former cottage/office (22.87m2) will need renovation work, but it adjoins the house so there is the possibility to knock through and increase the living space in the main house or keep it as a separate, independent building that could offer gite potential. Other outbuildings include the two garages 25m2 and 37m2. There is also a boiler workshop 19.78m2 with a De Dietrich oil boiler that can kick in in case of severe temperature drops
Location:
The house is situated in the lively, attractive market town of Boulogne-sur-Gesse where there is a big undercover and open air market square, that the locals make good use of throughout the year for various events and market days. The town has several restaurants and a good range of independent shops as well as two supermarkets.
Lac de la Gimone, just outside the town, is a real feature of the area. Running along the Gers/Haute-Garonne border, it is a fantastic spot to swim throughout the year: wonderful to cool off in the summer months and also great if you are partial to a nippy dip in the winter months! This is a great spot for walking, picnicking and playing.
This is a great area to explore with lots of interesting town, villages and historical features to visit and Toulouse airport is just 1hr 10 mins away. The Pyrenees mountains are about an hour away.
At a glance:
Bedrooms: 3
Bathrooms: 2
Receptions: 2
Habitable space: 265m2
Plot size: 1062m2
Taxe fonciere: € TBC
DPE rating: C
Broadband: available
Heating: Air-source heat pump
Drainage: Mains
Neighbours: Nearby
Distance to shops: Walking distance
Distance to airport: 1hr 10mins, Toulouse
Please note: Agency fees are included in the advertised price and are payable by the purchaser. All locations and sizes are approximate. La Residence has made every effort to ensure that the details and photographs of this property are accurate and in no way misleading. However, this information does not form part of a contract and no warranties are either given or implied.
Information on the risks to which this property is exposed is available on the Georisks website: www.georisks.gouv.fr
Recently renovated townhouse
3-bedrooms / 2 bathrooms
Big, light-filled rooms
Very pretty garden
Garage & off-road parking
Outbuildings
Situated in a lively, attractive town
Close to the beautiful Lac de la Gimone
Fantastic weekly market & annual community events
Several restaurants & shops within walking distance
Property features
- Property type: House
- Baths: 3
About the rental
- Price: $524 659
Hot properties
Saint-Jean-Cap-Ferrat, Alpes-Maritimes, France
Saint-Jean-Cap-Ferrat, Alpes-Maritimes, France
Cannes, Alpes-Maritimes, France
Cannes, Alpes-Maritimes, France
Similar properties
Portes Du Soleil, Les Gets, 74260, Rhone-Alpes, France
Sommieres, 30250, Languedoc-Roussillon, France
Boulogne-Sur-Gesse, 31350, Midi-Pyrenees, France
Auch, 32000, Midi-Pyrenees, France
Maubourguet, 65700, Midi-Pyrenees, France
AUMAGNE, 17770, Charente Maritime, France
Salies-De-Bearn, Nouvelle-Aquitaine, France
Cap-D'ail, Alpes-Maritimes, France
Cap-D'ail, Alpes-Maritimes, France
Saint Thibery, 34630, Languedoc-Roussillon, France
Florensac, 34510, Languedoc-Roussillon, France
Branne, 33420, Aquitaine, France
Totes, 76890, Haute-Normandie, France
St-Gervais-les-Bains, 74700, Rhone-Alpes, France
Laurens, 34480, Languedoc-Roussillon, France
Maubourguet, 65700, Midi-Pyrenees, France
Gard, Bagnols-sur-Ceze, 30200, Languedoc-Roussillon, France
Allemond, Rhone Alps, France
Allemond, Rhone Alps, France
Allemond, Rhone Alps, France
Allemond, Rhone Alps, France
Pouillon, Nouvelle-Aquitaine, France
Samoens, 74340, Rhone-Alpes, France
Beziers, 34500, Languedoc-Roussillon, France
Vic-Fezensac, 32190, Midi-Pyrenees, France
Méribel | Les Allues, Meribel Les Allues, 73550, Rhone-Alpes, France
Méribel | Les Allues, France
Moisy, 41160, Centre-Val de Loire region, France
Marciac, 32230, Midi-Pyrenees, France
Vernet les Bains, 66820, Pyrenees Orientales, France
Saint-Chaptes, 30190, Languedoc-Roussillon, France