You will be redirected to the agency website. Are you sure you want to continue?
2 bedrooms House for sale in Llucmajor
About this property
Ref Nr.:MT-CK170
Llucmajor - Sa Torre: Neubau; Freistehendes modernes Einfamilienhaus mit Pool.
Hell und modern gestaltet wird dieses neue Einfamilienhaus in Sa Torre. Derzeit ist es in der Planungsphase. Es wird schlusselfertig ubergeben.
insgesamt stehen ca. 200 m2 auf 2 Wohnebenen zur Verfugung.
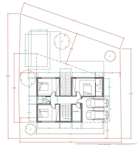
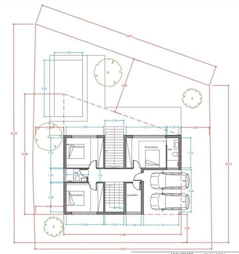
im Obergeschoss befinden sich neben dem Wohnzimmer und der Kuche auch 3 Schlafzimmer mit 2 Badern und ein Gaste-WC.
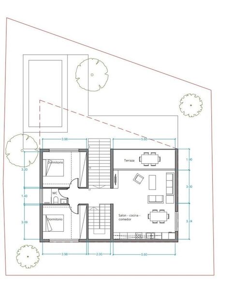
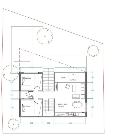
im Erdgeschoss kann eine Einliegerwohnung eingerichtet werden. Geplant sind 2 weitere Schlafzimmer und 1 Bad mit einem Wohnbereich. Auf die Raumaufteilung kann in diesem Stadium der Planung noch auf ihre individuellen Wunsche eingegangen werden.
Das Grundstuck von ca 404 m2 wird pflegeleicht angelegt und mit einem Pool versehen.
Die 3 PKW Stellplatze befinden sich im Erdgeschoss.
Das moderne Einfamilienhaus wird in der Calle Roma errichtet in einem gewachsenen Wohngebiet.
Fur mehr information rufen Sie bitte an unter 0049/177 3950331 oder 0034/677333293.
Ref No.:MT-CK170
Llucmajor - Sa Torre: New build; Detached modern family home with pool.
This new detached house in Sa Torre will have a bright and modern design. it is currently in the planning phase. it will be handed over turnkey.
A total of approx. 200 m2 is available on 2 living levels.
On the upper floor, in addition to the living room and kitchen, there are 3 bedrooms with 2 bathrooms and a guest WC.
A granny apartment can be set up on the first floor. There are plans for 2 further bedrooms and 1 bathroom with a living area. The room layout can still be adapted to your individual wishes at this stage of planning.
The plot of approx. 404 m2 will be easy to maintain and will have a pool.
The 3 parking spaces are located on the first floor.
The modern detached house is being built in Calle Roma in a mature residential area.
For more information please call 0049/177 3950331 or 0034/677333293.
Property features
- Property type: House
- Baths: 3
About the rental
- Price: $1 240 841
Hot properties
Marbella, Costa Del Sol, Spain
Benahavis, 29678, Andalucia, Spain
Benahavis, 29678, Andalucia, Spain
6, Barcelona, 8034, Barcelona, Spain
Similar properties
Manilva, Malaga, Spain
La Mairena, Malaga, Spain
Corralejo, Canary Islands, Spain
Finestrat, Spain
Fuengirola, Malaga, Spain
Estepona, Andalucia, Spain
Cala D'or, Mallorca, Spain
Altea Hills, Altea, Valencia, Spain
Calpe, Valencia, Spain
Calpe, Valencia, Spain
El Campello, Valencia, Spain
Calpe, Valencia, Spain
Calpe, Valencia, Spain
Finestrat, Valencia, Spain
Calpe, Valencia, Spain
107, Barcelona, 8008, Barcelona, Spain
Son Armadams, Son Armadams, Mallorca, Spain
Fuengirola, Malaga, spain
Calpe, Valencia, Spain
Selwo, Malaga, Spain
Estepona, Malaga, Spain
La Duquesa, Malaga, Spain
Finestrat, Valencia, Spain
Fuengirola, Spain
Cumbre Del Sol, Benitachell, Valencia, Spain
Fuengirola, Malaga, Spain
Los Flamingos, Malaga, Spain
Javea, 3730, Spain
Los Flamingos, Spain
Mijas, Spain
Los Flamingos, Spain