You will be redirected to the agency website. Are you sure you want to continue?
2 bedrooms House for sale in Calpe
About this property
b> Nice villa with 3 bedrooms, private pool and parking for 2 vehicles
PROJECT:
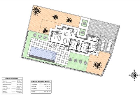
This project is located in one of the residential areas preferred by all the residents of Calpe, due to its proximity to the town centre, the beaches and at the same time because it is a quiet but safe area, as it is located on the outskirts of the town centre.
The property has been planned on a single floor, which makes this project practical and comfortable.
The whole plot is fenced and has a hedge of cypress trees inside, which provides privacy and a pleasant environment.
From the main entrance to the house we access to a hall, from which to the left we access to the day area, consisting of a living room with dining room and open kitchen with island and an area for laundry. From the living room we can access to the outside, where we have a covered porch area with barbecue and a large terrace with swimming pool of 40m2.
On the right hand side of the house is the sleeping area, with 3 bedrooms: the master suite with dressing room and bathroom and two further bedrooms sharing a bathroom.
Outside there is a parking area with a pergola in the form of a sail for two cars.
Plot:
800
m2
Built
area:
166
m2
Auxiliar
area:
282
m2
Total
area:
448
m2
Number
of
bedrooms:
3
Number
of
bathrooms:
2
Status:
Project
Details
Type: Luxury Villa
Transaction: For sale
Province: Alicante
Town: Calpe / Calp
Bedrooms: 3
Bathrooms: 2
Constructed area: 166 m2
Plot size: 448 m2
Type of property: New build
Energy certification (consumo):
Extras
Kitchen: American - Equipped
Balcony: Open terrace
Views: Pool
Swimming Pool: Private
Heating Type: Under floor heating - Central
Water heater: - Central
Garden: Private
Parking: Yes
Property floor: Gres
Reinforced Door: Yes
Air Conditioning: Yes
Fitted wardrobes: Yes
Double glazing: Yes
Shutters: Yes
* Number of parking place: 2
Property features
- Property type: House
- Baths: 2
About the rental
- Price: $1 119 359
Hot properties
Marbella, Costa Del Sol, Spain
Benahavis, 29678, Andalucia, Spain
Benahavis, 29678, Andalucia, Spain
6, Barcelona, 8034, Barcelona, Spain
Similar properties
Sotogrande, Andalucia, Spain
Estepona, 29680, Andalucia, Spain
Sotogrande, Andalucia, Spain
Estepona, 29680, Andalucia, Spain
Las Bre�as, Las Bre�as, 35570, Spain
Los Sauces, Los Cristianos, Tenerife, Spain
Marbella, Malaga, Spain
Torremolinos, Malaga, Spain
Parque Holandes, Canary Islands, Spain
Cercado Espino, Gran Canaria, Spain
Javea, 3730, Spain
La Manga, Murcia, Spain
Campoamor, Alicante, Spain
Sotogrande, Spain
East Marbella, Spain
Los Abrigos, 38618, Tenerife, Spain
Marbella, Costa Del Sol, Spain
Andratx, Mallorca, Spain
Javea, Valencia, Spain
Calpe, Valencia, Spain
Calpe, Valencia, Spain
Playa de La Fossa, Calpe, Valencia, Spain
Zona Manzanera/canuta, Calpe, Valencia, Spain
12, Barcelona, 8002, Barcelona, Spain
Playa Den Bossa, 780, Ibiza, Spain
Carrio, Calpe, Valencia, Spain
Mijas Costa, Spain
Mijas Costa, Spain
Santa Rosalia, Murcia, Spain
Campoamor, Alicante, Spain
Maryvilla, Calpe, Valencia, Spain