You will be redirected to the agency website. Are you sure you want to continue?
- Sale
- United States
- House
- 2 bedrooms House for sale in New York
2 bedrooms House for sale in New York
About this property
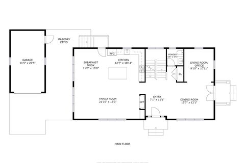
Experience modern sophistication at its finest in this exceptional new-construction residence, masterfully crafted by Scarsdales Premier Luxury Builder and slated for completion in Fall 2026. Thoughtfully designed with a custom floor plan, this Edgewood stunner is distinguished by 9-foot ceilings on all three levels, delivering a seamless flow of light, space, and architectural elegance throughout. The first floor features an inviting entry hall that opens to a spacious Family Room with a gas fireplace and a beautifully appointed chefs kitchen outfitted with stainless steel appliances and custom cabinetry. A formal Dining Room, versatile Living Room/office/guest space, and a stylish powder room complete this level. The second floor showcases a luxurious Primary Suite with a spa-inspired bath, one additional bedroom with an en-suite bath, plus two bedrooms that share a hall bath, along with a conveniently located laundry room. The finished lower level adds exceptional flexibility with
Reference: 36112_FHD1481282
Key Features
5 Bathroom(s)
3492 SqFt.
0.11 Acres
1-Car Garage
Built in 2026
Adult Community: No
Waterfront: No
Pool: No
View: No Ref: 36112-FHD1481282
Property features
- Property type: House
About the rental
- Price: $2 675 000
Hot properties
West 20Th Street In Chelsea 318 West 20T, Chelsea, New York, United States
West 66Th Street 17F In Upper West Side 50 West 66Th Street 17F, Upper West Side, New York, United States
Macarthur Boulevard 905, TX, United States
Macarthur Boulevard 905, Tx, United States
Similar properties
B Bay Street 1201, Georgia, United States
B Bay Street 1201, Georgia, United States
Eagle Point Dr 709, Venice, 34285, Florida, United States
SW 88th Pl 9454 SW 88t, Miami Fl, 33176, Florida, United States
Nebraska Ave Nw 2318, District of Columbia, United States
Nebraska Ave Nw 2318, District Of Columbia, United States
Brookstown Drive 5615, Tx, United States
Brookstown Drive 5615, TX, United States
NE 83rd St 1210 NE 83r, Miami Fl, 33138, Florida, United States
West 40Th Street 19C In Midtown East 16 West 40Th Street 19C, Midtown East, New York, United States
Gulf Dr 6700, Holmes Beach, 34217, Florida, United States
72nd St 203 72n, Holmes Beach, 34217, Florida, United States
TAMPA, FL 5713 Bowen Daniel Dr. 801, 33616, Florida, United States
East 57Th Street 5/6A In Midtown East 447 East 57Th Street 5/6A, Midtown East, New York, United States
Seventh Avenue 3F In Chelsea 252 Seventh Avenue 3F, Chelsea, New York, United States
East 52Nd Street 5B In Midtown East 244 East 52Nd Street 5B, Midtown East, New York, United States
SE 14th Street 1524 SE 14t, Fort Lauderdale, 33316, Florida, United States
W Flamingo Road, TAMPA, FL 4828, Florida, United States
Golden Gate Pt 509, Sarasota, 34236, Florida, United States
San Amaro Dr 4739, Coral Gables Fl, 33146, Florida, United States
Usa 3319 Gresham Charlotte Nc 28211, 28211, North Carolina, United States
Anchor Drive 136, Florida, United States
Collins Ave 16400, Sunny Isles Beach Fl, 33160, Florida, United States
Lakeview Dr 5000, Miami Beach Fl, 33140, Florida, United States
Sterling Place 1A In Park Slope 11 Sterling Place 1A, Park Slope, New York, United States
Noe Boulevard 1960, Tx, United States
Se County Road 4040 000 Se County Road 4040, Tx, United States
Noe Boulevard 1960, TX, United States
Se County Road 4040 000 Se County Road 4040, TX, United States
Bleecker Street In Soho 41, Soho, New York, United States
In Palm Beach 350 S Ocean Boulevard 107, Palm Beach, Florida, United States