You will be redirected to the agency website. Are you sure you want to continue?
- Sale
- United States
- House
- 2 bedrooms House for sale in TX
2 bedrooms House for sale in TX
About this property
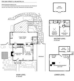
Welcome to this charming one-story home surrounded by mature trees and professionally designed landscaping. The inviting front entry features a secure gated driveway, with additional parking conveniently located in the rear. Inside, the home is filled with natural light throughout. Recent updates include fresh paint, new flooring and updated carpeting, making this home truly Move-In-Ready. Over $100,000 in structural and mechanical improvements. A spacious sunroom off the back provides the perfect spot for plants, a cozy reading nook, exercise room or playroom for children. The huge, fully fenced backyard is ideal for pets, outdoor activities, and play equipment. Enjoy evenings around the built-in fire pit and take advantage of the generous outdoor space for family gatherings. Recent foundation work has been completed, giving that added peace of mind. Buyers are eligible to join the Sparkman Club, featuring the newly renovated pool (2025), tennis and basketball courts, playgrounds an
Reference: 37245_DFW1598787
Key Features
2 Bathroom(s)
2265 SqFt.
0.28 Acres
2-Car Garage
Built in 1962
Adult Community: No
Waterfront: No
Pool: No
View: No Ref: 37245-DFW1598787
Property features
- Property type: House
About the rental
- Price: $780 000
Hot properties
West 20Th Street In Chelsea 318 West 20T, Chelsea, New York, United States
Aqua Vista Blvd 2301, Fort Lauderdale, 33301, Florida, United States
West 66Th Street 17F In Upper West Side 50 West 66Th Street 17F, Upper West Side, New York, United States
Ibis Point Circle 4080, Boca Raton, 33431, Florida, United States
Similar properties
Newel Street In Greenpoint 100, Greenpoint, New York, United States
Shorecrest Drive 3778, TX, United States
Starwood Drive 2751, TX, United States
Usa 10318 Hollybrook Charlotte Nc 28277, 28277, North Carolina, United States
East 46Th Street 20B In Midtown East 333 East 46Th Street 20B, Midtown East, New York, United States
Central Park West In Upper West Side 1 Central Park West 918, Upper West Side, New York, United States
East 40Th Street 22N In Murray Hill 300 East 40Th Street 22N, Murray Hill, New York, United States
East 78Th Street 9A In Upper East Side 200 East 78Th Street 9A, Upper East Side, New York, United States
Tbd Ranger Highway Tbd Ranger Highway #pt 2, TX, United States
Dorsett Place 6016, North Carolina, United States
Clementine Drive 7327, TX, United States
Firth Road 6301, TX, United States
Wendrill Road 79715, California, United States
Wendrill Road 79715, California, United States
West 182Nd Street 5F In Fort George 553 West 182Nd Street 5F, Fort George, New York, United States
Greenborough Lane 4629, TX, United States
Prairie Brush Trail 6115, TX, United States
2nd St S 3712 2n, Virginia, United States
Country Club Drive 18076, TX, United States
Edgecliff Terrace 91, New York, United States
East 84Th Street 4C In Upper East Side 332 East 84Th Street 4C, Upper East Side, New York, United States
Imperial Avenue 1432, TX, United States
Cochran Heights Drive 9126, TX, United States
Summer Drive 309, TX, United States
Hilltop Drive 131, TX, United States
Rscr 4480 641 Rscr 4480, TX, United States
East Fork Drive 77, Nevada, United States
Imperial Avenue 1437, TX, United States
Balcones Drive 2165, TX, United States
Lincoln Place 5B In Park Slope 235 Lincoln Place 5B, Park Slope, New York, United States
West 148Th Street 5D In Harlem 603 West 148Th Street 5D, Harlem, New York, United States