You will be redirected to the agency website. Are you sure you want to continue?
2 bedrooms Apartment for sale in Morillon
About this property
A new program being offered off-plan, L'Honorable is condominium of only 5 apartments located just 100m from the Morillon Gondola.
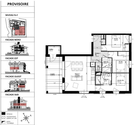
Apartment 102 is on the first floor with a surface area of 68m2. It includes an open plan living room (24m2) with fully fitted and equipped kitchenette and access to the veranda/loggia (13m2) with a cellar (2.4m2), 3 bedrooms (one with ensuite), family bathroom and a separate WC.
This apartment also benefits from a covered parking, a shared bike store, and a ski locker.
The apartment is offered to off-plan with reduced notary fees, delivery is scheduled for the end of 2025. There may be a possibility of purchasing a garage. High-end services and RE 2020 energy performance.
Morillon makes up one of the 5 resorts in the famous Grand Massif, it is a pretty Savoyard village in the French Alps. Steeped in tradition and charm and situated in the beautiful Giffre Valley. Morillon offers amazing skiing in winter and an abundance of outdoor activities throughout summer. It has also been awarded the French government's prestigious "Famille Plus" award for it's excellent children's facilities.
Description
A new program being offered off-plan, L'Honorable is condominium of only 5 apartments located just 100m from the Morillon Gondola.
Detail
Apartment 102 is on the first floor with a surface area of 68m2. It includes an open plan living room (24m2) with fully fitted and equipped kitchenette and access to the veranda/loggia (13m2) with a cellar (2.4m2), 3 bedrooms (one with ensuite), family bathroom and a separate WC.
This apartment also benefits from a covered parking, a shared bike store, and a ski locker.
The apartment is offered to off-plan with reduced notary fees, delivery is scheduled for the end of 2025. There may be a possibility of purchasing a garage. High-end services and RE 2020 energy performance.
Morillon
Morillon makes up one of the 5 resorts in the famous Grand Massif, it is a pretty Savoyard village in the French Alps. Steeped in tradition and charm and situated in the beautiful Giffre Valley. Morillon offers amazing skiing in winter and an abundance of outdoor activities throughout summer. It has also been awarded the French government's prestigious "Famille Plus" award for it's excellent children's facilities.
About Us
France Property Angels - We are an English Speaking Estate Agent specialising in the international market. We are based in France and have 20 years of experience. Our clients have access to our extensive property portfolio and benefit from our free property finding service. Clients who have bought through us are particularly complimentary about the standard of service we provide throughout the buying process.
Sales Details
Partner Agent Mandate - Delegation. By enquiring about this property you are authorising us to pass your contact details to our partner estate agents.
Agency fees payable by vendor.
This property is part of residence that comprise of 5 principle lots.
Co-ownership charges for this property: To be defined.
Energy Rating (DPE): To be defined.
Les informations sur les risques auxquels ce bien est expose sont disponibles sur le site Georisques: www.georisques.gouv.fr
Contact Us
Contact us on: +44 (0)1225 442128 or info@francepropertyangels.com
Number of reception rooms : 1 :
Number of bedrooms : 3 :
Number of bath/shower rooms : 2 :
Habitable Area : 68 m2
Number of "Lots" in copropriete : 5 :
Ski Storage : Yes:
Storage : Yes:
Parking: Yes :
County: Haute Savoie:
Postcode: 74440:
Near Town Centre: Yes:
Central Morillon
3 Bedrooms
New Build
Off Plan
Near Morillon Gondola
First Floor
Veranda/Loggia
Parking
* Ski Locker and Cellar
Property features
- Property type: Apartment
- Baths: 2
About the rental
- Price: $526 688
Hot properties
Saint-Jean-Cap-Ferrat, Alpes-Maritimes, France
Antibes, Alpes-Maritimes, France
Antibes, Alpes-Maritimes, France
Saint-Jean-Cap-Ferrat, Alpes-Maritimes, France
Similar properties
Nezignan L'eveque, 34120, Languedoc-Roussillon, France
Mirambeau, 17150, Poitou-Charentes, France
Antibes, Alpes-Maritimes, France
Antibes, Alpes-Maritimes, France
Lanneplaa, Nouvelle-Aquitaine, France
Portes Du Soleil, Les Gets, 74260, Rhone-Alpes, France
Sauve, Gard, 30610, France
Madiran, 65700, Midi-Pyrenees, France
Domaine de la Calade, La Garde Freinet, La Garde Freinet, Europe, France
Caveirac, 30820, Languedoc-Roussillon, France
Antibes, Alpes-Maritimes, France
Antibes, Alpes-Maritimes, France
Salies-De-Bearn, Nouvelle-Aquitaine, France
Nimes, 30000, Languedoc-Roussillon, France
Autignac, 34480, Languedoc-Roussillon, France
Habas, Nouvelle-Aquitaine, France
Antigny, 86310, Poitou-Charentes, France
Saint-Emilion, 33330, Aquitaine, France
Boulogne-sur-Gesse, 31350, Midi-Pyrenees, France
Portes Du Soleil, Les Gets, 74260, Rhone-Alpes, France
Sommieres, 30250, Languedoc-Roussillon, France
Boulogne-Sur-Gesse, 31350, Midi-Pyrenees, France
Auch, 32000, Midi-Pyrenees, France
Maubourguet, 65700, Midi-Pyrenees, France
AUMAGNE, 17770, Charente Maritime, France
Salies-De-Bearn, Nouvelle-Aquitaine, France
Cap-D'ail, Alpes-Maritimes, France
Cap-D'ail, Alpes-Maritimes, France
Saint Thibery, 34630, Languedoc-Roussillon, France
Florensac, 34510, Languedoc-Roussillon, France
Marseillan, 34340, Languedoc-Roussillon, France