You will be redirected to the agency website. Are you sure you want to continue?
Other for sale in Collazzone
About this property
Main features
Surface: 320 sqm (285 sqm usable area)
5 bedrooms
4 bathrooms
2 living rooms with stone fireplaces
Tower with bedroom
Panoramic garden of about 4,000 sqm
Portico of about 18 sqm
independent storage
Swimming pool (6 x 12 m)
Functional antique wood oven
Utilities: GPL gas heating, municipal water
Description
Located between Todi and Perugia, near the picturesque medieval village of Collazzone, this charming farmhouse offers breathtaking views of the Umbrian countryside. Fully renovated in 2004, the property preserves many of its original features, such as stone fireplaces, arches, and antique wooden beams.
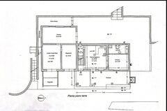
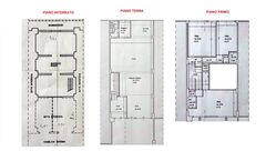
The property consists of three entrances and is spread over two levels. The ground floor includes a large living room with a stone fireplace and kitchen area, a small living room, one bedroom, and two bathrooms with showers (one of which is accessed directly from the living room). On the first floor, accessible by an internal staircase, there is a cozy sitting room with a fireplace, a second living room with another fireplace and mezzanine with a double sofa bed and access to the outdoor gazebo, as well as four bedrooms and two bathrooms with showers.
One of the bedrooms is located in the original tower of the farmhouse, accessed by a spiral staircase. The property also features a panoramic garden of about 4,000 sqm, an 18 sqm portico, and an independent storage area.
At the highest point of the property, bordered by a small olive grove, is the 6 x 12 meter swimming pool, alongside a small annex of about 26 sqm with a functional antique wood oven, perfect for preparing traditional Umbrian dishes.
The farmhouse is fully enclosed, equipped with GPL gas heating, municipal water, and a carport. The property is sold furnished, except for a few personal items excluded from the price.
Distances
Todi: 15 km
Orvieto: 50 km
Perugia: 40 km
Deruta: 20 km
Rome: 160 km
Florence: 170 km
E45 highway: 7 km
Ref. A1190RC92551
Property features
- Property type: Other
- Baths: 4
About the rental
- Price: $649 965
Similar properties
Cortona, Tuscany, Italy
Pitigliano, Tuscany, Italy
Salsomaggiore, 43039, Parma, Italy
Narni, 5035, Umbria, Italy
Firenze, Tuscany, Italy
Pontassieve, Tuscany, Italy
Terricciola, Tuscany, Italy
Pienza, Tuscany, Italy
Capannori, Tuscany, Italy
Gualdo Cattaneo, Umbria, Italy
Volterra, Tuscany, Italy
Campiglia Marittima, Tuscany, Italy
Scarlino, Tuscany, Italy
Massa Marittima, Tuscany, Italy
Campagnatico, Tuscany, Italy
Scarlino, Tuscany, Italy
Castiglione D'orcia, Tuscany, Italy
Pomarance, Tuscany, Italy
Lucca, Tuscany, Italy
Via Costa 27, Bergamo, Lombardy, Italy
Spiglia, 24060, Lombardy, Italy
Chiusi, Tuscany, Italy
Pienza, Tuscany, Italy
Piombino, Tuscany, Italy
Piombino, Tuscany, Italy
Piombino, Tuscany, Italy
Cecina, Tuscany, Italy
Montaione, Tuscany, Italy
Viareggio, Tuscany, Italy
Montaione, Tuscany, Italy
Monteriggioni, Tuscany, Italy